
电快速脉冲群抗扰度试验,是模拟电网中众多机械开关在切换感性负载时所产生的干扰。这类干扰的特点是:成群出现的窄脉冲、脉冲的重复频率较高(kHz-MHz级)、上升沿陡峭(ns级)、单个脉冲的持续时间短暂(10-100ns级)、幅度达到kV级。成群出现的窄脉冲可对半导体器件的结电容充电,当能量积累到一定程度后可引起线路或设备出错。试验时将脉冲叠加在电源线(通过耦合/去耦网络)和通信线路(通过电容耦合夹),对设备形成干扰。

电快速脉冲群抗扰度试验等级

试验设备
(1)试验发生器( 脉冲群发生器)
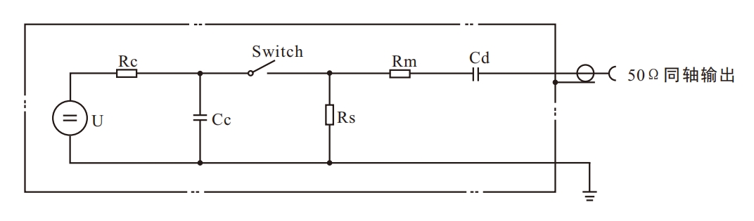
试验发生器的主要元件包括高压源、充电电阻、储能电容、放电器、脉冲持续时间成形电阻、阻抗匹配电阻、隔直电容,其电路简图如下图所示。
▽电快速瞬变脉冲群发生器电路简图

U—髙压源;Rc一充电电阻;Cc一储能电容器;RS一脉冲持续时间成形电阻;
Rm一阻抗匹配电阻;Cd—隔直电容
电快速瞬变脉冲群发生器的性能特性(接50Ω负载)如下。
a.开路输出电压范围(在储能电容器两端的电压〉为0.25(1一10%)~4Kv(1±10%)。
b.极性:正极性、负极性。
c.输出形式:同轴输出。
d.源阻抗:50 (1±20%) Ω。
e.发生器内的隔直电容为10nF。
f.单个脉冲的上升时间:5 (1±30%)ns,如下图所示。

△接50负载时单个脉冲的波形
g.脉冲持续时间(50%值):50(1±30%)ns,如上图所示。
h.与供电电源电压异步。
i.脉冲持续时间:15 (1±20%)ms,如下图所示。
j.脉冲群周期:300(1±20%)ms。

(2)电快速瞬变脉冲群发生器的校验
为了消除因各种类型发生器特性的分散性而可能出现的试验结果的不确定性,需要一个标准的校验和试验程序。试验发生器的输出通过一个50Ω的同轴衰减器接至示波器上。测量设备的带宽至少为400MHz。应该对一个脉冲群的上升时间、脉冲持续时间和脉冲重复频率进行监视。
对带有一个50Ω终端负载的电快速瞬变脉冲群发生器要进行校验的特性如下。
a.脉冲的上升时间50(1±30%)ns。
b.脉冲持续时间(50%值):50(1±30%)ns。
脉冲的重复频率和输出电压的峰值:0.125Kv时为5(1±20%)kHz、0.25kV时为5(1±20%)kHz、0.5kV时为5(1±20%)kHz、1.0kV时为5(1±20%)kHz、2.0kV时为2.5(1±20%)kHz。
(3)交/直流端口的耦合/去耦网络
这个网络提供在不对称条件下把试验电压施加到受试设备的电源端口的能力。其特性参数如下。
a.频率范围:0.1kHz-1000kHz。
b.耦合电容:3nF。
c.耦合衰减:小于2dB。
d.在不对称条件下的去耦衰减:大于20dB。
e.网络中每条线路和其他线路之间的串扰衰减:大于30dB。
f.耦合电容的绝缘耐受能力:5kV(试验脉冲:1.2/50µs)。
(4)容性耦合夹
耦合夹能在与受试设备各端口的端子、电缆屏蔽或受试设备的任何其他部分无任何电连接的情况下把快速瞬变脉冲群耦合到受试线路上。其特性参数如下。
a.电缆和耦合夹之间典型的耦合电容:100 pF~1000 pF。
b.圆电缆可用的直径范围:4~40mm。
c.绝缘耐受能力:5kV。

容性耦合夹
电快速脉冲群抗扰度试验方法
受试设备(EUT)的试验部分主要包括设备的供电电源端口、保护接地(PE)、信号和控制端口。

试验环境布置
试验布置注意事项:
根据IEC61000-4-4,GB/T17626.4标准要求,电快速瞬变脉冲群试验,需在参考地平面上进行,除了铜板和铝板外,其他参考地金属板厚度不小于0.65mm。
参考地平面需要良好连接大地,试验设备也需要接地。
设备电源输出端口到DUT距离不能超过0.5m±10%,线束过长可能会造成能量衰减。
DUT线束过长,折扎时禁止绕成圈,防止绕圈而形成电感,造成脉冲能量衰减。

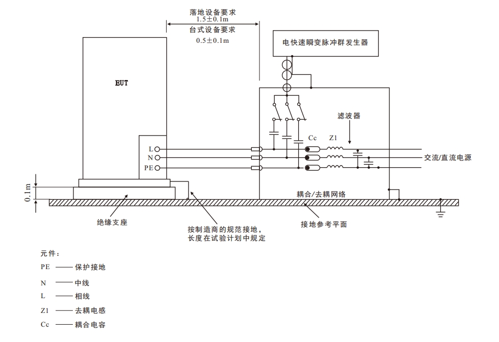
△对交流/直流电源端直接耦合试验电压的实验室型式试验布置示例

△固定的落地式受试设备交流/直流电源端口和保护接地端子现场试验示例
实验室进行型式试验的试验布置
试验条件:
下列要求适用于在8.1列出的参比环境条件下在实验室进行的试验。
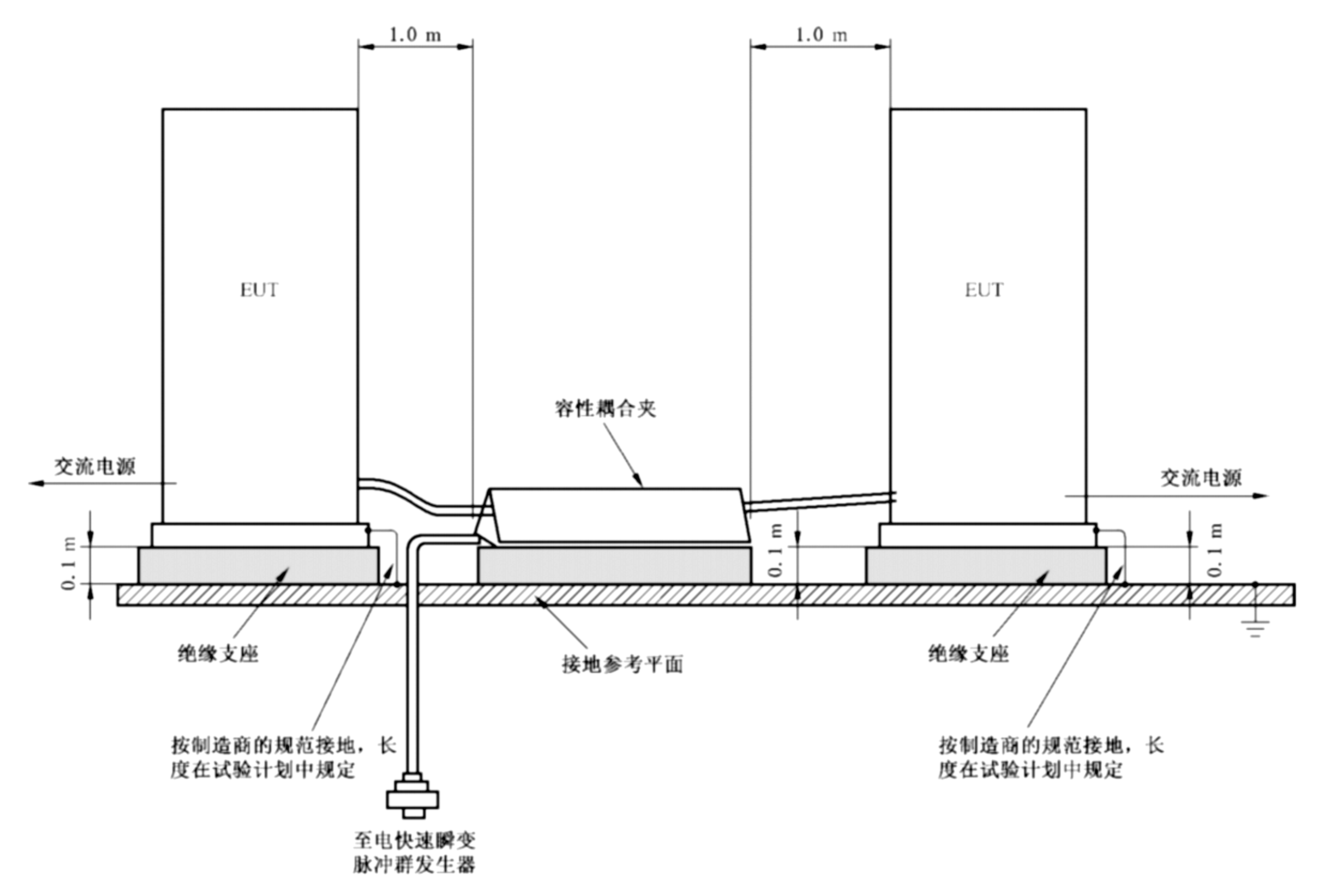
落地式和设计安装于其他配置中的受试设备,除非另外提及,都应放置在接地参考平面上,并用厚度为(0.1士0.05)m的绝缘支座(包括不导电的滚轮在内)与之隔开(见下图)。

△用于实验室型式试验的布置示例
说明:(A)-电源线耦合位置: (B)--信号线耦合位置。
台式设备和通常安装于天花板或者墙壁的设备以及嵌入式设备应按受试设备放置在接地参考平面上方(0.1±0.01)m处试验。
大型的台式设备或多系统的试验可按落地式进行,应维持与台式设备试验布置相同的距离。
试验发生器和耦合/去耦网络应与参考接地平面搭接。
接地参考平面应为一块厚度不小于0.25mm的金属板(铜或铝);也可以使用其他的金属材料,但其厚度至少应为0.65mm。
接地参考平面的最小尺寸为0.8mx1m。其实际尺寸取决于受试设备的尺寸。
接地参考平面的各边至少应比受试设备超出0.1m。
因安全原因,接地参考平面应与保护接地相连接。
受试设备应该按照设备安装规范进行布置和连接,以满足它的功能要求,
除了接地参考平面,受试设备和所有其他导电性结构(包括发生器、辅助设备和屏蔽室的墙壁)之间的最小距离应大于0.5m。
与受试设备相连接的所有电缆应放置在接地参考平面上方0.1m的绝缘支撑上。不经受电快速瞬变脉冲的电缆布线应尽量远离受试电缆,以使电缆间的耦合最小化。
受试设备应按照制造商的安装规范连接到接地系统上,不允许有额外的接地。耦合/去耦网络连接到接地参考平面的接地电缆,以及所有的搭接所产生的连接阻抗,其电感成分要小。
应采用直接耦合或容性耦合夹施加试验电压。试验电压应逐个耦合到受试设备的所有端口,包括受试设备两单元之间的端口,除非设备单元之间互连线的长度达不到进行试验的基本要求(见下图)。

电快速脉冲群抗扰度试验实测波形

内置耦合方式
用户可选择源直接输出,或者通过耦合去耦网络输出,耦合路径可全选或者根据需要选择。
支持多种耦合路径,用户可在测试过程中,可以自由勾选开启或者关闭耦合路径。
当前试验中的耦合路径会在屏界面测试步骤中显示。

长沙容测电子股份有限公司致力于电磁兼容测试设备的研发以及电磁兼容测试技术的推广普及,全力为客户提供专业的EMC测试产品和解决方案。
我们的产品:
民用领域:静电放电发生器、脉冲群发生器、雷击浪涌发生器、射频传导抗干扰测试系统、工频磁场发生器、脉冲磁场发生器、阻尼振荡磁场发生器、交流电压跌落发生器、振铃波发生器、共模传导抗扰度测试系统、阻尼振荡波发生器、直流电压跌落发生器等
汽车领域:静电放电发生器、7637测试系统、汽车电子可编程电源、瞬态发射开关测量、汽车线束微中断发生器、BCI大电流注入测试系统、EMI接收机、辐射抗扰度测试系统、低频磁场抗扰度测试系统、射频辐射抗扰度测试系统等
军工领域:静电放电发生器、低频传导抗扰度测试系统、尖峰脉冲发生器、电缆束注入测试系统、快速方波测试系统、高速阻尼振荡测试系统等
